Clayton Nellie Elite - Granger Mobile Homes
Clayton Nellie Elite Model #52nxi32764ah
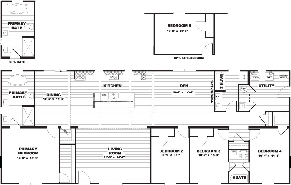
4 Beds 3 Baths 2280 Sq. Feet $175,000

Nellie Elite

By Clayton

Step into the Nellie Elite — a spacious, well-appointed home that brings together comfort, style, and modern living across 2,280 square feet. With four bedrooms and three full baths, this layout is ideal for active households, multigenerational living, or hosting guests.

The heart of the home features an open-concept living space where the kitchen, dining, and living areas flow together seamlessly — perfect for gathering, entertaining, or relaxed daily life. The kitchen shines with a large island, upgraded stainless-steel appliances, and smart finishes that offer both form and function.

Your private primary suite is a true retreat: generous space, ample closet room, and a beautifully outfitted ensuite bath. Meanwhile, three additional bedrooms and two more bathrooms offer flexible space for family, guests, a home office, or a hobby room.

Finance This Home

Monthly
Principal and Interest
Payment:

Disclaimer: This calculator is for informational purposes only and does not constitute a financing offer or guarantee of approval. Actual loan terms and eligibility are determined by our financing partners upon application.

Apply Online Now

Floor Plan

Box Size:
32ft. x 76ft.
(Double Wide)

Virtual Tour

Schedule a Tour

Name(Required)
This field is hidden when viewing the form

Ricky B.
2 weeks ago
Granger Homes made us feel like family and put for 100% to help us find our forever home. Kyle and Shawna made our experience their top priority and helped us all the way.
Dado H.
2 weeks ago
Shawna at Granger made the process so easy as first time home buyers and answered every question possible ! So thankful for her .
jen G.
2 weeks ago
First of all, if I could give 10 stars, I definitely would! I looked and searched several different places across a few states, and right off the bat I was impressed! They dont beat around the bush, prices are listed online! No calling or having to take off work to go look. Every detail, down to the exact instructions on how to apply was right there! Everyone, Shawna on the financing side, Elainea on the service side, movers and trim out guys were absolutely amazing and go above and beyond! Granger Mobile Homes is top tier! You wont be disappointed!!
Kyler H.
1 month ago
They truly are the best! So informative and helpful!
Alfred F.
3 months ago
I would recommend this place to anyone!! Everyone was great!!
Erika S.
3 months ago
Granger Mobile Homes absolutely deserves more than five stars! From the moment I reached out, their customer service was AMAZING!! Every single person I spoke with was professional, kind, and genuinely invested in helping me. The home's craftsmanship was top tier! The construction is solid, the finishes are beautiful, and you can tell they take real pride in every detail. I’m beyond impressed and extremely grateful for how smooth and positive the entire experience was. I would HIGHLY RECOMMEND Granger Mobile Homes to anyone looking for quality, professionalism, and outstanding service!
Heather S.
3 months ago
Granger was great from start to finish! Glad I bought from them and felt supported throughout the entire process.
Jonathan W.
4 months ago
Really great place. Nice environment, very friendly people and very helpful. Very happy with our choice to go with granger.
Gary K.
4 months ago
If I could give these guys ten stars, they sure would deserve it. Kyle and his crew are the best. Thank you for everything you guys have done.
K R.
4 months ago
If you're reading this review you've likely noticed all of the reviews to date (Oct. 2025) are 5 star. That's accurate and there's a very good reason for it. Fast, friendly, affordable, transparent. All of these are true. What is also true is that they helped me to not feel like an idiot through this process. There were no surprises. Seriously, I wouldn't consider any other mobile home dealer. Especially since other dealers do that business of "Comment HOME for pricing!" Like, dude, just tell me the friggin price without making me have to have a conversation with you. I want none of that.
Jason B.
6 months ago
Huge shout out to everyone on the Granger Team! Everyone was so helpful, patient, and professional with us throughout the whole buying and set up process. Highly recommended!
Cody A.
8 months ago
If you are thinking about buying a house definitely buy from here! Do not go anywhere else!!! Kyle and his staff are the best to work with! My wife and I have been very happy throughout the process!
Kelly A.
9 months ago
Kyle Granger and his team were great! I purchased a Clayton Flex in February 2025 as a vacation home and we are very pleased with the sale and service. A special thank you to Elena for her fantastic customer service!!
M O.
9 months ago
I simply cannot say enough good things about Kyle and Granger Homes. I had countless questions (this being my 1st home purchase) and Kyle and his office staff patiently answered every one. Even when I asked for measurements so I knew what size something was while I was figuring out furniture, Kyle would go measure it and text me. It is so rare to find true, honest customer service nowadays but Kyle and his staff definitely delivered. I am so happy I chose to purchase my new home from Granger. Even after the sale, Kyle and Elaina are still providing the same great customer service. You may find the same floor plan on another lot somewhere, but I promise you will not find this level of excellent service anywhere else.
Mark F.
9 months ago
Great experience doing business with Granger! Staff is very friendly and very responsive. Thank you Kyle for helping us get our new home!! Doug and Breanna Marchant
Kong Cheng V.
11 months ago
Great team, great service and friendly people. Highly recommended.
Lynk V.
11 months ago
Kyle is the man! Get with him for your new manufacture home.
Skyler M.
11 months ago
This business is very customer friendly. Super thankful for Kyle, Elainea, Tyden, and all who take care of my mom and her home she bought from them! Thank you for your courtesy and friendliness.
Chance S.
1 year ago
BEST MOBILE HOME PLACE!!! Buy your homes HERE!!!!! I’ve went to 3 different mobile home dealerships none of them could compare with the amount of respect and sweet deals I got with Kyle he was quick got me in my new doublewide very fast returned every phone call and text message that same day even if his office was closed I 1000000000000% recommend you shop here they will take very very good care of you
Marcia D.
1 year ago
Granger Mobile Homes was a pleasure to work with when I purchased me single wide to downsize. They were VERY good about returning my calls and working with me to answer MY many questions about the whole process. It was a learning experience for me because this was my first experience with this type of dwelling, but Granger was right there to guide me through the process and get back quickly with me if I needed answers. Thanks for your patience and service through the process Kyle, Elaina, Elaina's hubby, delivery team, and office team! God bless!❤️
Breana W.
1 year ago
The whole process from start to finish was easy. Kyle was great to work with and if we ever need another mobile home we would choose Granger again!
ashley P.
1 year ago
Has been a pleasure to work with the entire team at Granger. They always were friendly and helpful and went above and beyond. I will always recommend this group of people.
Troy B.
1 year ago
Not really a review of Clayton Homes but more so for Granger Mobile Homes dealership. We own property and was looking for a home to retire in. My wife found a listing for a manufactured home and called about. She was so impressed on how nice and helpful Kyle was we drove past a Clayton Homes dealer 5 miles from us (with rude and self centered people) 80 miles to Granger.
It couldn't have been a better experience with the people there. I immediately liked the "good 'ole country boy" attitude displayed by Kyle. Made us feel right at home working with him.
Still some hangups with our water department with getting water and septic installed but not the fault of Granger. I have called a few times since we purchased our home and he is always quick to answer and helpful. His assistant is extremely nice and helpful also always. I am horrible remembering names so hers escapes me.
I couldn't recommend Granger Mobile Homes enough if you are in search of a manufactured home. You won't be disappointed. I wish I could rate them more than 5 stars.
Jenna M.
2 years ago
Very friendly! Always sent updates about build time and if Kyle ever didn't know an answer to a question I had, he would figure it out. I would recommend Granger Mobile Homes for anyone wanting a new trailer!
Monika T.
2 years ago
We had the BEST experience with Granger Mobile Homes. Kyle and the entire crew were super amazing from the beginning to the end. We are very satisfied and in love with our new home!
Robyn L.
2 years ago
Kyle Granger, his wife, and their crew are amazing people! We have bought a house through an actual realtor which was such a headache and when we found Kyle I wish we would have found him years ago! He made buying a house SO EASY! We loved that Kyle & his people were a phone call or text away from fixing ANY problems! If you're in the market for a beautiful home don't walk, RUN to Granger Mobile Homes in Kiowa, Ok!
Chelsi H.
2 years ago
Top notch experience! From them showing us trailers while we had to make pit stops to feed our bottle baby goat (we all had to laugh) to helping with minor problems inside of our new home, they made it enjoyable, personal, and full of respect! We traveled all over to find what fit for us, not only house wise, but the company too! We have no regret with this choice at all! 100% recommend Granger Mobile Home and will be sending all our family and friends here!
Janet M.
2 years ago
We bought our home from Granger Mobile Homes 4 months ago and we love it!! Kyle Granger and his staff are THE BEST!! If you are looking for a mobile home GO SEE KYLE! No one can beat his prices!!!
Lisa B.
2 years ago
Our house burnt in February 24’ . We had shopped at other places for a mobile home. when we stopped at Granger in Kiowa, we instantly felt like this was the place to be. Kyle and everyone there made us feel so much better about our situation. We are so happy with our purchase. I got to pick out colors of a few different things which gave it more of a it’s our house type feel. I recommend this place to everyone I see that is shopping for a new home. They are so kind.
Crystal S.
2 years ago
Kyle and his wife are the sweetest and most knowledgeable. I am so glad we went through this process with them.
Melissa M.
2 years ago
Kyle and his entire crew were completely helpful from the beginning to the end of my getting into my new home. He and his staff go above and beyond-even after the home is delivered and set up! Thanks Granger Homes! Y’all made the purchase and move of my home easy!
Aaron W.
2 years ago
My wife and I have been shopping for a house for over 10 years now. Kyle has the best customer service and we are so happy with our choice of coming here we will not buy a house from any other place, ever.

I invite you to see for yourself just how amazing everyone here is! They take ownership and pride in what they do and your experience.

Every interaction is addressed with care, love and politeness.
Ricky B.
2 weeks ago
Granger Homes made us feel like family and put for 100% to help us find our forever home. Kyle and Shawna made our experience their top priority and helped us all the way.
Dado H.
2 weeks ago
Shawna at Granger made the process so easy as first time home buyers and answered every question possible ! So thankful for her .
jen G.
2 weeks ago
First of all, if I could give 10 stars, I definitely would! I looked and searched several different places across a few states, and right off the bat I was impressed! They dont beat around the bush, prices are listed online! No calling or having to take off work to go look. Every detail, down to the exact instructions on how to apply was right there! Everyone, Shawna on the financing side, Elainea on the service side, movers and trim out guys were absolutely amazing and go above and beyond! Granger Mobile Homes is top tier! You wont be disappointed!!
Kyler H.
1 month ago
They truly are the best! So informative and helpful!
Alfred F.
3 months ago
I would recommend this place to anyone!! Everyone was great!!
Erika S.
3 months ago
Granger Mobile Homes absolutely deserves more than five stars! From the moment I reached out, their customer service was AMAZING!! Every single person I spoke with was professional, kind, and genuinely invested in helping me. The home's craftsmanship was top tier! The construction is solid, the finishes are beautiful, and you can tell they take real pride in every detail. I’m beyond impressed and extremely grateful for how smooth and positive the entire experience was. I would HIGHLY RECOMMEND Granger Mobile Homes to anyone looking for quality, professionalism, and outstanding service!
Heather S.
3 months ago
Granger was great from start to finish! Glad I bought from them and felt supported throughout the entire process.
Jonathan W.
4 months ago
Really great place. Nice environment, very friendly people and very helpful. Very happy with our choice to go with granger.
Gary K.
4 months ago
If I could give these guys ten stars, they sure would deserve it. Kyle and his crew are the best. Thank you for everything you guys have done.
K R.
4 months ago
If you're reading this review you've likely noticed all of the reviews to date (Oct. 2025) are 5 star. That's accurate and there's a very good reason for it. Fast, friendly, affordable, transparent. All of these are true. What is also true is that they helped me to not feel like an idiot through this process. There were no surprises. Seriously, I wouldn't consider any other mobile home dealer. Especially since other dealers do that business of "Comment HOME for pricing!" Like, dude, just tell me the friggin price without making me have to have a conversation with you. I want none of that.
Jason B.
6 months ago
Huge shout out to everyone on the Granger Team! Everyone was so helpful, patient, and professional with us throughout the whole buying and set up process. Highly recommended!
Cody A.
8 months ago
If you are thinking about buying a house definitely buy from here! Do not go anywhere else!!! Kyle and his staff are the best to work with! My wife and I have been very happy throughout the process!
Kelly A.
9 months ago
Kyle Granger and his team were great! I purchased a Clayton Flex in February 2025 as a vacation home and we are very pleased with the sale and service. A special thank you to Elena for her fantastic customer service!!
M O.
9 months ago
I simply cannot say enough good things about Kyle and Granger Homes. I had countless questions (this being my 1st home purchase) and Kyle and his office staff patiently answered every one. Even when I asked for measurements so I knew what size something was while I was figuring out furniture, Kyle would go measure it and text me. It is so rare to find true, honest customer service nowadays but Kyle and his staff definitely delivered. I am so happy I chose to purchase my new home from Granger. Even after the sale, Kyle and Elaina are still providing the same great customer service. You may find the same floor plan on another lot somewhere, but I promise you will not find this level of excellent service anywhere else.
Mark F.
9 months ago
Great experience doing business with Granger! Staff is very friendly and very responsive. Thank you Kyle for helping us get our new home!! Doug and Breanna Marchant
Kong Cheng V.
11 months ago
Great team, great service and friendly people. Highly recommended.
Lynk V.
11 months ago
Kyle is the man! Get with him for your new manufacture home.
Skyler M.
11 months ago
This business is very customer friendly. Super thankful for Kyle, Elainea, Tyden, and all who take care of my mom and her home she bought from them! Thank you for your courtesy and friendliness.
Chance S.
1 year ago
BEST MOBILE HOME PLACE!!! Buy your homes HERE!!!!! I’ve went to 3 different mobile home dealerships none of them could compare with the amount of respect and sweet deals I got with Kyle he was quick got me in my new doublewide very fast returned every phone call and text message that same day even if his office was closed I 1000000000000% recommend you shop here they will take very very good care of you
Marcia D.
1 year ago
Granger Mobile Homes was a pleasure to work with when I purchased me single wide to downsize. They were VERY good about returning my calls and working with me to answer MY many questions about the whole process. It was a learning experience for me because this was my first experience with this type of dwelling, but Granger was right there to guide me through the process and get back quickly with me if I needed answers. Thanks for your patience and service through the process Kyle, Elaina, Elaina's hubby, delivery team, and office team! God bless!❤️
Breana W.
1 year ago
The whole process from start to finish was easy. Kyle was great to work with and if we ever need another mobile home we would choose Granger again!
ashley P.
1 year ago
Has been a pleasure to work with the entire team at Granger. They always were friendly and helpful and went above and beyond. I will always recommend this group of people.
Troy B.
1 year ago
Not really a review of Clayton Homes but more so for Granger Mobile Homes dealership. We own property and was looking for a home to retire in. My wife found a listing for a manufactured home and called about. She was so impressed on how nice and helpful Kyle was we drove past a Clayton Homes dealer 5 miles from us (with rude and self centered people) 80 miles to Granger.
It couldn't have been a better experience with the people there. I immediately liked the "good 'ole country boy" attitude displayed by Kyle. Made us feel right at home working with him.
Still some hangups with our water department with getting water and septic installed but not the fault of Granger. I have called a few times since we purchased our home and he is always quick to answer and helpful. His assistant is extremely nice and helpful also always. I am horrible remembering names so hers escapes me.
I couldn't recommend Granger Mobile Homes enough if you are in search of a manufactured home. You won't be disappointed. I wish I could rate them more than 5 stars.
Jenna M.
2 years ago
Very friendly! Always sent updates about build time and if Kyle ever didn't know an answer to a question I had, he would figure it out. I would recommend Granger Mobile Homes for anyone wanting a new trailer!
Monika T.
2 years ago
We had the BEST experience with Granger Mobile Homes. Kyle and the entire crew were super amazing from the beginning to the end. We are very satisfied and in love with our new home!
Robyn L.
2 years ago
Kyle Granger, his wife, and their crew are amazing people! We have bought a house through an actual realtor which was such a headache and when we found Kyle I wish we would have found him years ago! He made buying a house SO EASY! We loved that Kyle & his people were a phone call or text away from fixing ANY problems! If you're in the market for a beautiful home don't walk, RUN to Granger Mobile Homes in Kiowa, Ok!
Chelsi H.
2 years ago
Top notch experience! From them showing us trailers while we had to make pit stops to feed our bottle baby goat (we all had to laugh) to helping with minor problems inside of our new home, they made it enjoyable, personal, and full of respect! We traveled all over to find what fit for us, not only house wise, but the company too! We have no regret with this choice at all! 100% recommend Granger Mobile Home and will be sending all our family and friends here!
Janet M.
2 years ago
We bought our home from Granger Mobile Homes 4 months ago and we love it!! Kyle Granger and his staff are THE BEST!! If you are looking for a mobile home GO SEE KYLE! No one can beat his prices!!!
Lisa B.
2 years ago
Our house burnt in February 24’ . We had shopped at other places for a mobile home. when we stopped at Granger in Kiowa, we instantly felt like this was the place to be. Kyle and everyone there made us feel so much better about our situation. We are so happy with our purchase. I got to pick out colors of a few different things which gave it more of a it’s our house type feel. I recommend this place to everyone I see that is shopping for a new home. They are so kind.
Crystal S.
2 years ago
Kyle and his wife are the sweetest and most knowledgeable. I am so glad we went through this process with them.
Melissa M.
2 years ago
Kyle and his entire crew were completely helpful from the beginning to the end of my getting into my new home. He and his staff go above and beyond-even after the home is delivered and set up! Thanks Granger Homes! Y’all made the purchase and move of my home easy!
Aaron W.
2 years ago
My wife and I have been shopping for a house for over 10 years now. Kyle has the best customer service and we are so happy with our choice of coming here we will not buy a house from any other place, ever.

I invite you to see for yourself just how amazing everyone here is! They take ownership and pride in what they do and your experience.

Every interaction is addressed with care, love and politeness.