Clayton Emilie - Granger Mobile Homes
Clayton Emilie Model #52nxi28563ah
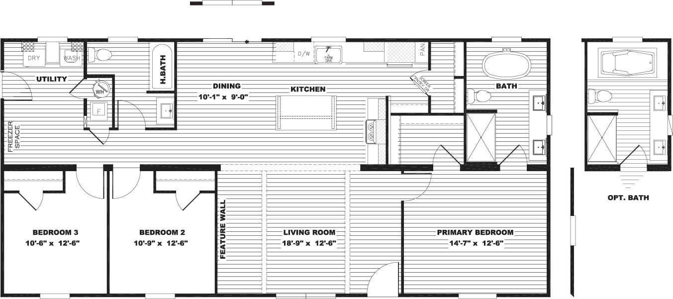
3 Beds 2 Baths 1474 Sq. Feet $135,000

Emilie

By Clayton

Discover the Emilie, a thoughtfully designed space with approximately 1,474 square feet of modern living. This home features three comfortable bedrooms and two full baths, striking a perfect balance between open-and-intimate. The heart of the home welcomes you with an open-concept kitchen, dining and living area anchored by a large, single-level island — ideal for everyday living or relaxed entertaining. The primary suite offers a private retreat with a generous walk-in closet and beautifully appointed bath. Two additional bedrooms provide flexible space for family, guests or a home office. With premium finishes like farmhouse-style faucets, stainless-steel appliances and smart-home-ready upgrades, the Emilie blends modern comforts with timeless appeal — all designed to make everyday life feel exceptional.

Finance This Home

Monthly
Principal and Interest
Payment:

Disclaimer: This calculator is for informational purposes only and does not constitute a financing offer or guarantee of approval. Actual loan terms and eligibility are determined by our financing partners upon application.

Apply Online Now

Floor Plan

Box Size:
28ft. x 56ft.
(Double Wide)

Virtual Tour

Schedule a Tour

Use the form below to schedule a tour of this home. One of our representatives will contact you to confirm your tour time and date.

Name(Required)
This field is hidden when viewing the form

I would recommend this place to anyone!! Everyone was great!!
Very friendly and knowledgeable.
Granger Mobile Homes absolutely deserves more than five stars! From the moment I reached out, their customer service was AMAZING!! Every single person I spoke with was professional, kind, and genuinely invested in helping me. The home's craftsmanship was top tier! The construction is solid, the finishes are beautiful, and you can tell they take real pride in every detail. I’m beyond impressed and extremely grateful for how smooth and positive the entire experience was. I would HIGHLY RECOMMEND Granger Mobile Homes to anyone looking for quality, professionalism, and outstanding service!
They are the sweetest people! They were very knowledgeable and able to answer all of my questions!
Granger was great from start to finish! Glad I bought from them and felt supported throughout the entire process.
Really great place. Nice environment, very friendly people and very helpful. Very happy with our choice to go with granger.
If I could give these guys ten stars, they sure would deserve it. Kyle and his crew are the best. Thank you for everything you guys have done.
If you're reading this review you've likely noticed all of the reviews to date (Oct. 2025) are 5 star. That's accurate and there's a very good reason for it. Fast, friendly, affordable, transparent. All of these are true. What is also true is that they helped me to not feel like an idiot through this process. There were no surprises. Seriously, I wouldn't consider any other mobile home dealer. Especially since other dealers do that business of "Comment HOME for pricing!" Like, dude, just tell me the friggin price without making me have to have a conversation with you. I want none of that.
I had a great experience with Granger Mobile Homes! Kyle Granger made the entire process so convenient and stress-free. He was helpful every step of the way and went above and beyond to make sure I got into my mobile home quickly. I really appreciate his professionalism and dedication. Highly recommend Kyle and Granger Mobile Homes!
Huge shout out to everyone on the Granger Team! Everyone was so helpful, patient, and professional with us throughout the whole buying and set up process. Highly recommended!
If you are thinking about buying a house definitely buy from here! Do not go anywhere else!!! Kyle and his staff are the best to work with! My wife and I have been very happy throughout the process!
Kyle Granger and his team were great! I purchased a Clayton Flex in February 2025 as a vacation home and we are very pleased with the sale and service. A special thank you to Elena for her fantastic customer service!!
I simply cannot say enough good things about Kyle and Granger Homes. I had countless questions (this being my 1st home purchase) and Kyle and his office staff patiently answered every one. Even when I asked for measurements so I knew what size something was while I was figuring out furniture, Kyle would go measure it and text me. It is so rare to find true, honest customer service nowadays but Kyle and his staff definitely delivered. I am so happy I chose to purchase my new home from Granger. Even after the sale, Kyle and Elaina are still providing the same great customer service. You may find the same floor plan on another lot somewhere, but I promise you will not find this level of excellent service anywhere else.
Great experience doing business with Granger! Staff is very friendly and very responsive. Thank you Kyle for helping us get our new home!! Doug and Breanna Marchant
Great team, great service and friendly people. Highly recommended.
Kyle is the man! Get with him for your new manufacture home.
This business is very customer friendly. Super thankful for Kyle, Elainea, Tyden, and all who take care of my mom and her home she bought from them! Thank you for your courtesy and friendliness.
BEST MOBILE HOME PLACE!!! Buy your homes HERE!!!!! I’ve went to 3 different mobile home dealerships none of them could compare with the amount of respect and sweet deals I got with Kyle he was quick got me in my new doublewide very fast returned every phone call and text message that same day even if his office was closed I 1000000000000% recommend you shop here they will take very very good care of you
Granger Mobile Homes was a pleasure to work with when I purchased me single wide to downsize. They were VERY good about returning my calls and working with me to answer MY many questions about the whole process. It was a learning experience for me because this was my first experience with this type of dwelling, but Granger was right there to guide me through the process and get back quickly with me if I needed answers. Thanks for your patience and service through the process Kyle, Elaina, Elaina's hubby, delivery team, and office team! God bless!❤️
The whole process from start to finish was easy. Kyle was great to work with and if we ever need another mobile home we would choose Granger again!
Has been a pleasure to work with the entire team at Granger. They always were friendly and helpful and went above and beyond. I will always recommend this group of people.
Not really a review of Clayton Homes but more so for Granger Mobile Homes dealership. We own property and was looking for a home to retire in. My wife found a listing for a manufactured home and called about. She was so impressed on how nice and helpful Kyle was we drove past a Clayton Homes dealer 5 miles from us (with rude and self centered people) 80 miles to Granger.
It couldn't have been a better experience with the people there. I immediately liked the "good 'ole country boy" attitude displayed by Kyle. Made us feel right at home working with him.
Still some hangups with our water department with getting water and septic installed but not the fault of Granger. I have called a few times since we purchased our home and he is always quick to answer and helpful. His assistant is extremely nice and helpful also always. I am horrible remembering names so hers escapes me.
I couldn't recommend Granger Mobile Homes enough if you are in search of a manufactured home. You won't be disappointed. I wish I could rate them more than 5 stars.
Very friendly! Always sent updates about build time and if Kyle ever didn't know an answer to a question I had, he would figure it out. I would recommend Granger Mobile Homes for anyone wanting a new trailer!
We had the BEST experience with Granger Mobile Homes. Kyle and the entire crew were super amazing from the beginning to the end. We are very satisfied and in love with our new home!
Kyle Granger, his wife, and their crew are amazing people! We have bought a house through an actual realtor which was such a headache and when we found Kyle I wish we would have found him years ago! He made buying a house SO EASY! We loved that Kyle & his people were a phone call or text away from fixing ANY problems! If you're in the market for a beautiful home don't walk, RUN to Granger Mobile Homes in Kiowa, Ok!
Top notch experience! From them showing us trailers while we had to make pit stops to feed our bottle baby goat (we all had to laugh) to helping with minor problems inside of our new home, they made it enjoyable, personal, and full of respect! We traveled all over to find what fit for us, not only house wise, but the company too! We have no regret with this choice at all! 100% recommend Granger Mobile Home and will be sending all our family and friends here!
We bought our home from Granger Mobile Homes 4 months ago and we love it!! Kyle Granger and his staff are THE BEST!! If you are looking for a mobile home GO SEE KYLE! No one can beat his prices!!!
Our house burnt in February 24’ . We had shopped at other places for a mobile home. when we stopped at Granger in Kiowa, we instantly felt like this was the place to be. Kyle and everyone there made us feel so much better about our situation. We are so happy with our purchase. I got to pick out colors of a few different things which gave it more of a it’s our house type feel. I recommend this place to everyone I see that is shopping for a new home. They are so kind.
Kyle and his wife are the sweetest and most knowledgeable. I am so glad we went through this process with them.
Kyle and his entire crew were completely helpful from the beginning to the end of my getting into my new home. He and his staff go above and beyond-even after the home is delivered and set up! Thanks Granger Homes! Y’all made the purchase and move of my home easy!
My wife and I have been shopping for a house for over 10 years now. Kyle has the best customer service and we are so happy with our choice of coming here we will not buy a house from any other place, ever.

I invite you to see for yourself just how amazing everyone here is! They take ownership and pride in what they do and your experience.

Every interaction is addressed with care, love and politeness.
I would recommend this place to anyone!! Everyone was great!!
Very friendly and knowledgeable.
Granger Mobile Homes absolutely deserves more than five stars! From the moment I reached out, their customer service was AMAZING!! Every single person I spoke with was professional, kind, and genuinely invested in helping me. The home's craftsmanship was top tier! The construction is solid, the finishes are beautiful, and you can tell they take real pride in every detail. I’m beyond impressed and extremely grateful for how smooth and positive the entire experience was. I would HIGHLY RECOMMEND Granger Mobile Homes to anyone looking for quality, professionalism, and outstanding service!
They are the sweetest people! They were very knowledgeable and able to answer all of my questions!
Granger was great from start to finish! Glad I bought from them and felt supported throughout the entire process.
Really great place. Nice environment, very friendly people and very helpful. Very happy with our choice to go with granger.
If I could give these guys ten stars, they sure would deserve it. Kyle and his crew are the best. Thank you for everything you guys have done.
If you're reading this review you've likely noticed all of the reviews to date (Oct. 2025) are 5 star. That's accurate and there's a very good reason for it. Fast, friendly, affordable, transparent. All of these are true. What is also true is that they helped me to not feel like an idiot through this process. There were no surprises. Seriously, I wouldn't consider any other mobile home dealer. Especially since other dealers do that business of "Comment HOME for pricing!" Like, dude, just tell me the friggin price without making me have to have a conversation with you. I want none of that.
I had a great experience with Granger Mobile Homes! Kyle Granger made the entire process so convenient and stress-free. He was helpful every step of the way and went above and beyond to make sure I got into my mobile home quickly. I really appreciate his professionalism and dedication. Highly recommend Kyle and Granger Mobile Homes!
Huge shout out to everyone on the Granger Team! Everyone was so helpful, patient, and professional with us throughout the whole buying and set up process. Highly recommended!
If you are thinking about buying a house definitely buy from here! Do not go anywhere else!!! Kyle and his staff are the best to work with! My wife and I have been very happy throughout the process!
Kyle Granger and his team were great! I purchased a Clayton Flex in February 2025 as a vacation home and we are very pleased with the sale and service. A special thank you to Elena for her fantastic customer service!!
I simply cannot say enough good things about Kyle and Granger Homes. I had countless questions (this being my 1st home purchase) and Kyle and his office staff patiently answered every one. Even when I asked for measurements so I knew what size something was while I was figuring out furniture, Kyle would go measure it and text me. It is so rare to find true, honest customer service nowadays but Kyle and his staff definitely delivered. I am so happy I chose to purchase my new home from Granger. Even after the sale, Kyle and Elaina are still providing the same great customer service. You may find the same floor plan on another lot somewhere, but I promise you will not find this level of excellent service anywhere else.
Great experience doing business with Granger! Staff is very friendly and very responsive. Thank you Kyle for helping us get our new home!! Doug and Breanna Marchant
Great team, great service and friendly people. Highly recommended.
Kyle is the man! Get with him for your new manufacture home.
This business is very customer friendly. Super thankful for Kyle, Elainea, Tyden, and all who take care of my mom and her home she bought from them! Thank you for your courtesy and friendliness.
BEST MOBILE HOME PLACE!!! Buy your homes HERE!!!!! I’ve went to 3 different mobile home dealerships none of them could compare with the amount of respect and sweet deals I got with Kyle he was quick got me in my new doublewide very fast returned every phone call and text message that same day even if his office was closed I 1000000000000% recommend you shop here they will take very very good care of you
Granger Mobile Homes was a pleasure to work with when I purchased me single wide to downsize. They were VERY good about returning my calls and working with me to answer MY many questions about the whole process. It was a learning experience for me because this was my first experience with this type of dwelling, but Granger was right there to guide me through the process and get back quickly with me if I needed answers. Thanks for your patience and service through the process Kyle, Elaina, Elaina's hubby, delivery team, and office team! God bless!❤️
The whole process from start to finish was easy. Kyle was great to work with and if we ever need another mobile home we would choose Granger again!
Has been a pleasure to work with the entire team at Granger. They always were friendly and helpful and went above and beyond. I will always recommend this group of people.
Not really a review of Clayton Homes but more so for Granger Mobile Homes dealership. We own property and was looking for a home to retire in. My wife found a listing for a manufactured home and called about. She was so impressed on how nice and helpful Kyle was we drove past a Clayton Homes dealer 5 miles from us (with rude and self centered people) 80 miles to Granger.
It couldn't have been a better experience with the people there. I immediately liked the "good 'ole country boy" attitude displayed by Kyle. Made us feel right at home working with him.
Still some hangups with our water department with getting water and septic installed but not the fault of Granger. I have called a few times since we purchased our home and he is always quick to answer and helpful. His assistant is extremely nice and helpful also always. I am horrible remembering names so hers escapes me.
I couldn't recommend Granger Mobile Homes enough if you are in search of a manufactured home. You won't be disappointed. I wish I could rate them more than 5 stars.
Very friendly! Always sent updates about build time and if Kyle ever didn't know an answer to a question I had, he would figure it out. I would recommend Granger Mobile Homes for anyone wanting a new trailer!
We had the BEST experience with Granger Mobile Homes. Kyle and the entire crew were super amazing from the beginning to the end. We are very satisfied and in love with our new home!
Kyle Granger, his wife, and their crew are amazing people! We have bought a house through an actual realtor which was such a headache and when we found Kyle I wish we would have found him years ago! He made buying a house SO EASY! We loved that Kyle & his people were a phone call or text away from fixing ANY problems! If you're in the market for a beautiful home don't walk, RUN to Granger Mobile Homes in Kiowa, Ok!
Top notch experience! From them showing us trailers while we had to make pit stops to feed our bottle baby goat (we all had to laugh) to helping with minor problems inside of our new home, they made it enjoyable, personal, and full of respect! We traveled all over to find what fit for us, not only house wise, but the company too! We have no regret with this choice at all! 100% recommend Granger Mobile Home and will be sending all our family and friends here!
We bought our home from Granger Mobile Homes 4 months ago and we love it!! Kyle Granger and his staff are THE BEST!! If you are looking for a mobile home GO SEE KYLE! No one can beat his prices!!!
Our house burnt in February 24’ . We had shopped at other places for a mobile home. when we stopped at Granger in Kiowa, we instantly felt like this was the place to be. Kyle and everyone there made us feel so much better about our situation. We are so happy with our purchase. I got to pick out colors of a few different things which gave it more of a it’s our house type feel. I recommend this place to everyone I see that is shopping for a new home. They are so kind.
Kyle and his wife are the sweetest and most knowledgeable. I am so glad we went through this process with them.
Kyle and his entire crew were completely helpful from the beginning to the end of my getting into my new home. He and his staff go above and beyond-even after the home is delivered and set up! Thanks Granger Homes! Y’all made the purchase and move of my home easy!
My wife and I have been shopping for a house for over 10 years now. Kyle has the best customer service and we are so happy with our choice of coming here we will not buy a house from any other place, ever.

I invite you to see for yourself just how amazing everyone here is! They take ownership and pride in what they do and your experience.

Every interaction is addressed with care, love and politeness.